Oensingen/Gärtnerei Jurt
Ein römischer Gutshof und frühmittelalterliche Gräber im Ortskern von Oensingen
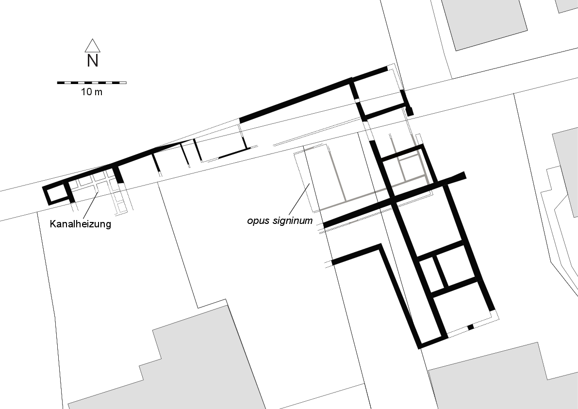
Der römische Gutshof im Ortskern von Oensingen ist seit dem 19. Jahrhundert bekannt. Er wurde bisher jedoch kaum archäologisch untersucht. Im Rahmen diverser Bauprojekte führte die Kantonsarchäologie in den Jahren 2016 und 2017 Ausgrabungen bei der ehemaligen Gärtnerei Jurt durch. Dies erlaubte erstmals einen Teil des gut erhaltenen, mehrphasigen Herrenhauses - dem Wohnhaus des Besitzers oder Verwalters des römischen Gutshofes - zu untersuchen.
Im 1. Jahrhundert n.Chr. errichteten die Römer einen Fachwerkbau, dessen Räume mit Mörtelböden ausgestattet waren. Einer dieser Mörtelböden war sogar mit einem seltenen Muster aus Gitternetzlinien verziert (opus signinum). Im 2./3. Jahrhundert n.Chr. entstand an derselben Stelle ein mehrgeschossiger, 60 x 40 m grosser Steinbau mit U-förmigem Grundriss. Der Haupttrakt und die Seitenflügel bildeten einen Vorhof, der von einer Portikus gesäumt war. An der Nordwestecke des Gebäudes lag ein Raum, der mit einer Heissluft-Kanalheizung versehen war. Im Ostflügel befanden sich die mit Mörtelböden ausgestatteten Wohn- und Repräsentationsräume. Der westliche Seitenflügel und Teile des Haupttraktes sind weiterhin im Boden verborgen. Das Herrenhaus fiel im ausgehenden 3. Jahrhundert n.Chr. einem Brand zum Opfer.
Im 7. Jahrhundert n.Chr. entstand im Hof der römischen Ruine ein Friedhof. Die 22 untersuchten Gräber enthielten zahlreiche Beigaben: Kurzschwerter, Messer sowie kleine und grosse Gürtelschnallen aus Eisen, einen Kamm, einen Fingerring und Ohrringe aus Bronze und Halsketten aus Glasperlen. Die Beigaben zeigen, dass Oensingen im Frühmittelalter in einer Kontaktzone zweier Kulturkreise lag: Während die grossen Gürtelschnallen ein typischer Bestandteil der romanischen Frauentracht im Westen darstellt, gehören die Kurzschwerter aus den Männergräbern eher zum östlichen Kulturkreis der Alemannen.
Kantonsarchäologie
Werkhofstrasse 55 4509 Solothurn
Öffnungs- und Telefonzeiten
Montag - Donnerstag
08:30 - 12:00 / 14:00 - 17:00
Freitag
08:30 - 12:00 / 14:00 - 16:00







